

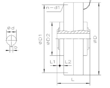
規格型號 | 額定轉矩Nm | 滑差功率w | Zui大電流A | Zui高轉速rpm | 外形尺寸 | 空心軸聯接尺寸 | 止口支撐尺寸 | 冷卻方式 | ||||||
D | L | d(h7) | b | L1 | L2 | D1 | D2(g7) | n-dlx深度 | ||||||
CZKB-0.3 | 3 | 30 | 0.46 | 1500 | 88 | 48 | 15 | 5 | 2.5 | 6.5 | 80 | 47 | 3-M4*8 | 自然冷 |
CZKB-0.6 | 6 | 60 | 0.53 | 1500 | 105 | 51 | 20 | 6 | 3 | 6.5 | 97 | 55 | 3-M4*8 | 自然冷 |
CZKB-1.2 | 12 | 90 | 0.81 | 1500 | 118 | 56 | 25 | 8 | 3 | 7 | 110 | 62 | 3-M4*8 | 自然冷 |
CZKB-2.5 | 25 | 120 | 0.94 | 1500 | 139 | 64 | 25 | 8 | 3 | 5 | 129 | 62 | 4-M5*10 | 自然冷 |
CZKB-5 | 50 | 160 | 1.24 | 1500 | 182 | 72 | 30 | 8 | 3 | 8 | 169 | 80 | 4-M6*10 | 自然冷 |
CZKB-10 | 100 | 270 | 2.15 | 1500 | 232 | 88 | 35 | 10 | 4 | 10 | 206 | 100 | 4-M18*12 | 自然冷 |
空心軸超薄磁粉制動器用途
- 磁粉制動器緩沖起動,停止用:利用連結時的圓滑特性及定轉矩特性達到緩沖起動和停止。
- 連續滑動、張力控制用
- 轉矩限制器用
- 高速應答用
- 動力吸收用
- 定位停止用
- 模擬負載用
空心軸超薄磁粉制動器概述
由于磁粉制動器的接合是非剛性連接,當負載的扭矩超過磁粉離合器的傳遞力矩時,磁粉鏈的抗剪力不足以抵抗外力的作用,主從動轉子之間出現打滑或處于滑轉工作狀態 。張力控制,限載啟動,過載保護,負載控制等都是這一性能的運用。
對于磁粉制動器來說,制動轉子固定,制動轉矩轉化為負載轉矩,即磁粉制動器一直在滑差狀態下工作。處于滑轉狀態的磁粉離合器、制動器會將由滑差轉矩與轉速所消耗的功率轉化為熱量,使工作器件的溫度升高。







.jpg)
蘇公網安備 32062102000172號